Wpis 13
2 października 2014 r.
Pan projektant dał nam namiar na kilka miejsc, w których powstają Familiarisy. Skorzystaliśmy tylko z jednego - w zupełności nam to wystarczyło, a nawet podwójnie, bo była to realizacja w wariancie zabudowy bliźniaczej, gdzie budynki były połączone garażami. Właścicielka domku była tak miła, że oprowadziła nas po wnętrzu. Budynek był już wewnątrz otynkowany, z ułożonymi instalacjami, w trakcie urządzania kotłowni. Choć to jeszcze ciągle plac budowy, to jednak dał nam pojęcie o układzie i wielkości pomieszczeń, o przestrzeni wewnątrz budynku i o jego funkcjonalności, i to tak namacalnie a nie na rzutach czy nawet wizualizacjach. I co? No i jesteśmy zachwyceni. Ten projekt jest stworzony tak jakby specjalnie dla nas.
Mając na uwadze rzuty kondygnacji i to co zobaczyliśmy w rzeczywistym, stojącym już budynku zdecydowaliśmy jednak o dokonaniu paru zmian w projekcie:
1. PARTER
w salonie zamieniamy miejscami okno przy kuchni i okno tarasowe z równoczesnym, rzecz jasna, przeniesieniem tarasu,
ponieważ dom chcemy ogrzewać kotłem na pellety, robimy miejsce na worki z pelletami poszerzając garaż o 1 m,
w garażu powiększamy wejście na strych i zakładamy tam na stałe schody młynarskie zamiast składanych schodów strychowych,
poszerzamy przejście między kuchnią i salonem
| Parter - wersja oryginalna |
| Parter - wersja zmieniona |
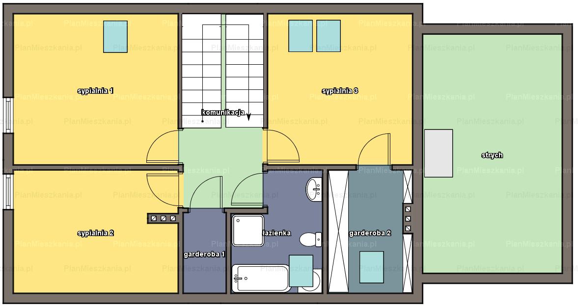
2. PODDASZE
likwidujemy wejście z sypialni do większej garderoby i samą garderobę,
tę większą garderobę łączymy razem z łazienką, która w tym momencie znacznie się powiększyła,
likwidujemy w łazience jedno z dwóch okien połaciowych,
w łazience przesuwamy w prawo lewą ściankę działową, powiększając w ten sposób mniejszą garderobę.
| Poddasze - wersja oryginalna |
| Poddasze - wersja zmieniona |
Teraz wodzimy palcem po rzutach i jest pięknie, domek uszyty według naszych wyobrażeń. No i znów zrobiliśmy mały kroczek do celu.




Komentarze